Grange Avenue Townhouse

The Grange Avenue Townhouse forms part of a bespoke residential development consisting of three high-specification apartments and an attached two-storey contemporary townhouse.

Located in the heart of Milngavie, an affluent suburb north of Glasgow popular with families and retirees, the site previously featured a poorly executed 1960s extension attached to a beautiful blonde sandstone Victorian villa. Originally used as council offices, the building presented an ideal opportunity for residential conversion and redevelopment.

Location
Grange Avenue, Milngavie
Client
Henry Duncan West End (ltd)
Project Type
Residential Home Design
Project Status
Completed in 2014
Contract Value
£480,000
Size
435m2

Client Brief

Our client tasked NVDC Architects with completely redeveloping the site to create unique, spacious homes that maximise natural light, views, and orientation. Each dwelling was to feature its own private outdoor space, enhancing appeal to both young families and downsizers seeking modern homes near Glasgow.

Architectural Approach

As experienced Glasgow residential architects, our strategy was to rationalise the overall architectural language of the building while fully realising its development potential. We reimagined the 1960s extension into a striking two-storey upside-down townhouse with direct level access to an elevated private rear garden. The original Victorian villa was sensitively subdivided into:

-A main door ground floor apartment with extensive private garden

-A first-floor apartment featuring a large roof terrace

-An attic-level apartment with a private terrace carved into the original roof structure

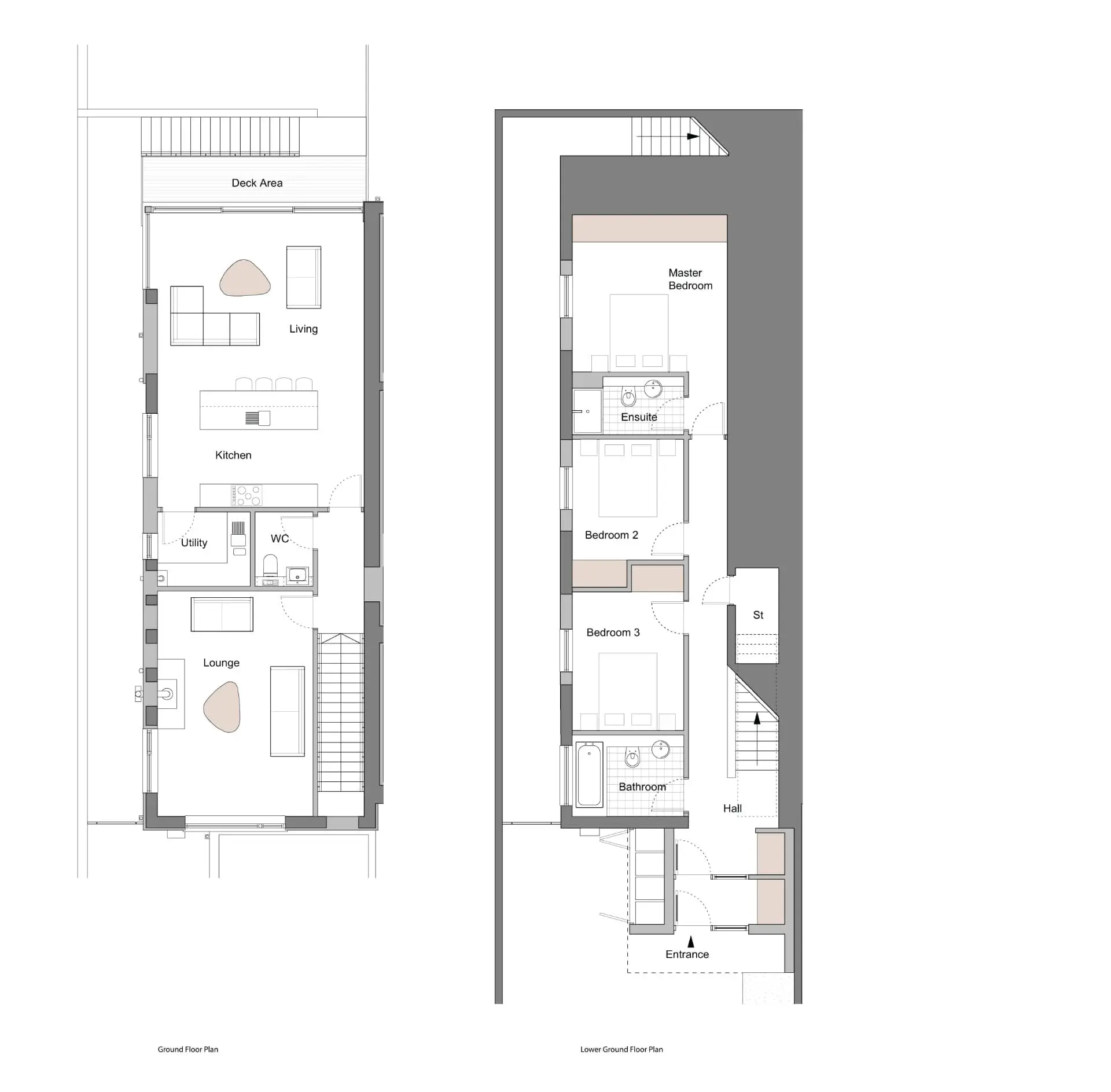
Townhouse Layout

The Grange Avenue Townhouse features:

-An open-plan living, kitchen, and dining area overlooking the rear garden

-A formal lounge facing the front aspect

-Three bedrooms located at the ground/entrance level

This contemporary family townhouse has been carefully designed to support modern living, appealing equally to growing families and downsizers seeking energy-efficient homes in Milngavie.

Energy Efficiency Focus

Sustainability was a key driver in the design. To achieve high standards of energy efficiency, we used an external insulated render system for the townhouse and installed high-performance double-glazed windows from Rationel. New window openings were carefully positioned to maximise natural daylight and solar gain, reducing energy demand throughout the year.

The Grange Avenue development stands as an excellent example of modern residential design by our leading Glasgow architect team, successfully blending historic restoration and contemporary architecture within a sought-after suburban setting.

NVDC Architects

Browse our website offline by installing our web app for free!

This website uses cookies to ensure you get the best experience on our website. Privacy Policy