Somerset Place

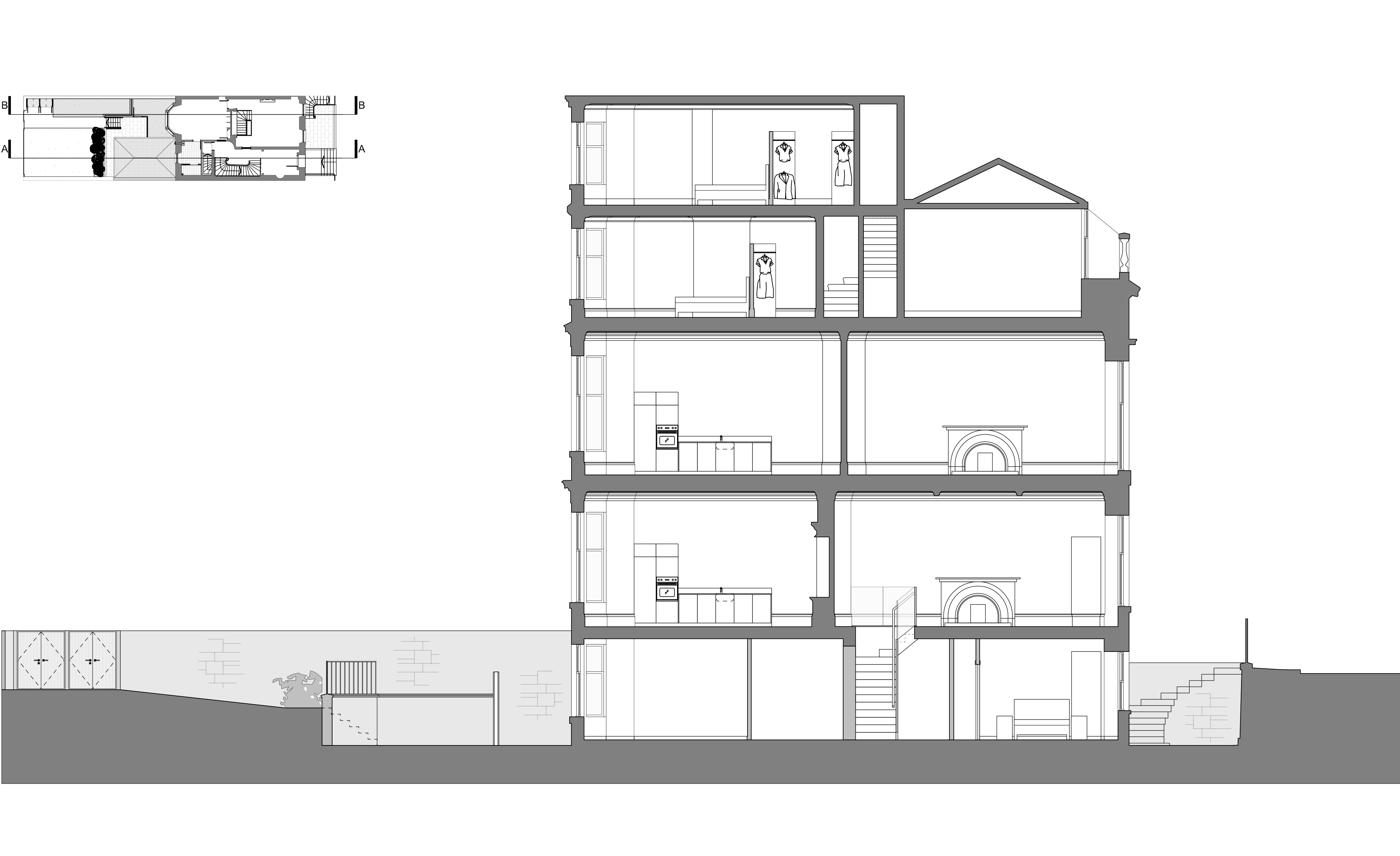
Our latest project at 5 Somerset Place in Glasgow’s West End showcases our expertise in the comprehensive renovation, restoration, and intelligent conversion of historic properties. This substantial five-storey B-listed townhouse, originally designed by the renowned architect John Baird in 1840, is part of the historic Somerset Place streetscape (Nos. 2–14), which was awarded Category B listing by Historic Environment Scotland in 1970.

Location
5 Somerset Place, Glasgow
Client
Barclay Scott
Project Type
Residential
Project Status
Completed 2024
Size
483 m2

Project Overview

Previously used as office space for several decades, the property was purchased by our client, Barclay Scott, with the vision of returning it to residential use. Our goal was to create two exclusive modern homes while preserving the building's historical integrity. As experienced Glasgow architects specializing in listed building conversions, we collaborated closely with Historic Environment Scotland and local planning authorities to ensure the transformation respected the original architectural character while delivering homes suited to contemporary living.

Completed Project Details

The project, completed in late 2024, comprises:

  • A three-bedroom duplex occupying the lower ground and ground floors.
  • A four-bedroom triplex formed across the first, second, and attic levels.

Architectural and Design Excellence

This listed building retrofit successfully retains key period features such as ornate cornices, original fireplaces, and grand staircases. At the same time, we introduced carefully considered layouts, upgraded building fabric, and modern internal specifications. The result is a seamless blend of heritage restoration and contemporary residential design, providing luxurious and comfortable living spaces in one of Glasgow’s most prestigious conservation areas.

Sustainability and Modern Living

Our approach to sustainability includes high-performance insulation, energy-efficient heating systems, and the use of environmentally friendly materials. These features ensure that the homes are not only beautiful but also energy-efficient and sustainable, aligning with modern living standards.

Our Expertise as Glasgow Architects

As a leading Glasgow architect practice, we pride ourselves on our ability to deliver bespoke residential architecture that respects historical contexts while meeting contemporary needs. Our extensive experience in listed building conversions allows us to navigate the complexities of such projects with precision and care. This project at Somerset Place is a testament to our commitment to excellence in architectural design and heritage conservation.

Conclusion

The transformation of 5 Somerset Place exemplifies our dedication to creating homes that honor Glasgow’s rich architectural heritage while providing modern, sustainable living spaces. We are proud to contribute to the ongoing renaissance of the Park Conservation Area and to offer our clients homes that combine historical charm with contemporary comfort.

NVDC Architects

Browse our website offline by installing our web app for free!

This website uses cookies to ensure you get the best experience on our website. Privacy Policy