Urban Lounge, Edinburgh

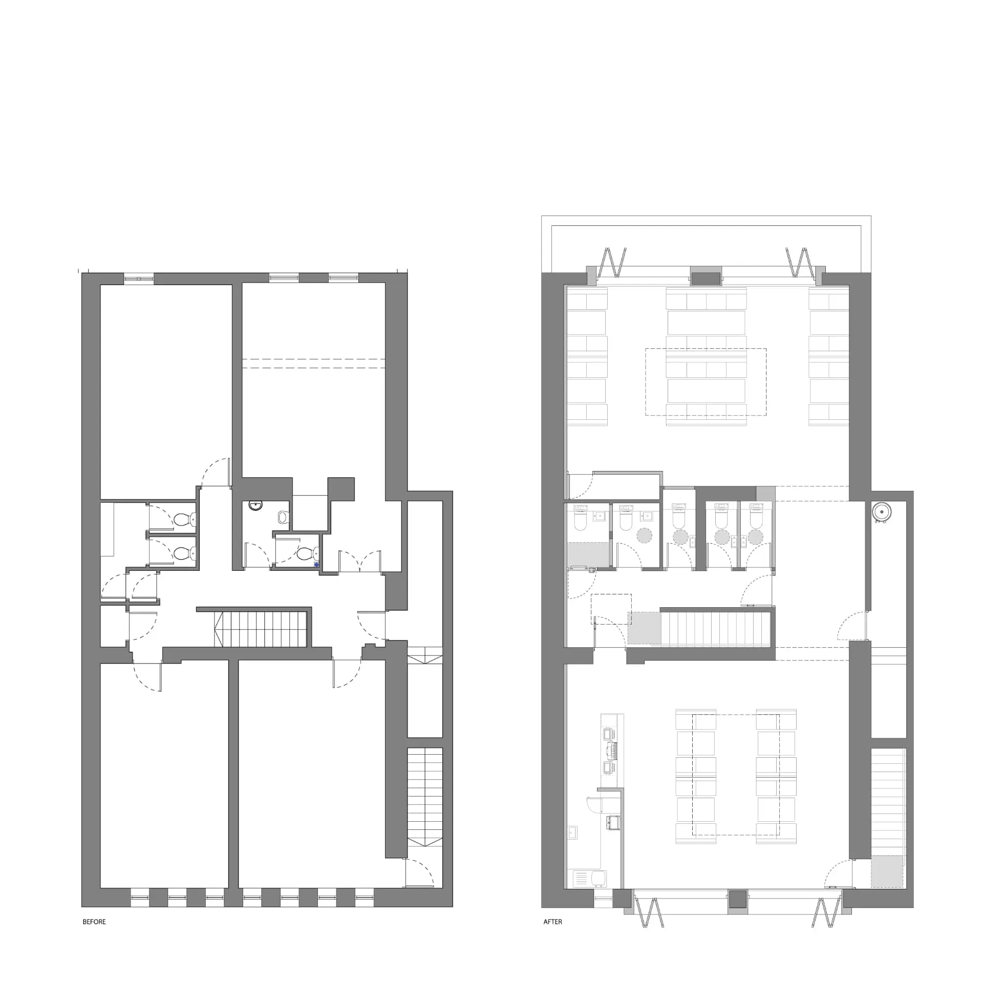
The client for this project approached NVDC Architects to develop designs for a Shisha Café on the first floor of a property we had already secured Class 3 Use on both floors for.

Location
Gorgie Road, Edinburgh
Client
Urban Lounge
Project Type
Shisha Cafe Design
Project Status
Completed in 2011
Size
150m2

The key challenge with this project has been to develop a design that satisfied planning in terms of proposed external alterations that were necessary to satisfy environmental health regulations for creating a compliant Shisha Cafe.  

NVDC was successful in securing planning & building warrant and the client completed the works in 2011.

NVDC Architects

Browse our website offline by installing our web app for free!

This website uses cookies to ensure you get the best experience on our website. Privacy Policy