Care Home Extension & Refurbishment Project

We recently obtained Planning and Building Warrant for remodelling and expanding an existing nursing home in a thight site, designed to expand its capacity and improve the quality of care through thoughtful design and strategic upgrades.

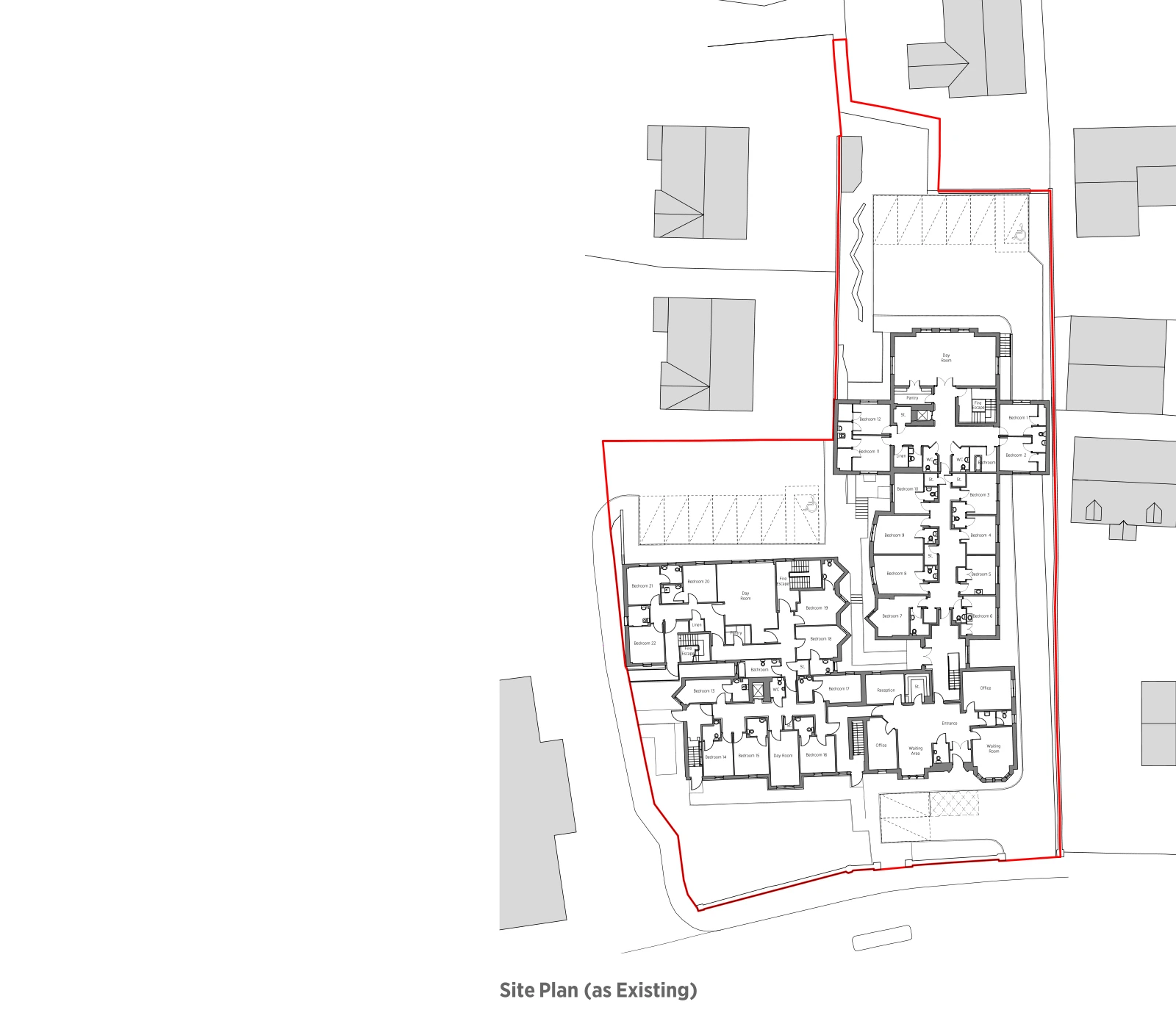
The project involved the construction of a three-storey extension, adding 12 new en-suite bedrooms to the facility. These rooms were designed to meet modern care standards, offering improved accessibility, privacy, and comfort for residents. In addition to the new build, we undertook a full remodelling and refurbishment of an existing wing, upgrading internal layouts, finishes, and infrastructure to enhance both functionality and aesthetics.

As part of the refurbishment, we also created additional ancillary accommodation, including staff areas, storage, and communal spaces, all tailored to support the operational needs of the care home and improve the overall experience for residents and staff alike.

Location
Dreghorn, Irvine
Client
Shalom Nursing Home
Project Type
Extension, Remodelling & Refurbishment
Project Status
In progress
Size
...m2

Care Home Remodelling & Extension – A Thoughtful Upgrade for Modern Care

At NVDC Architects, we understand that care homes are more than buildings—they’re places where people live, heal, and connect. This project involved the sensitive remodelling and extension of an existing care home, designed to improve resident wellbeing, support staff, and meet modern care standards.

 

Why Remodelling Matters

As care needs evolve, older facilities often struggle to keep up. This project addressed several key challenges:

  • -Added capacity through new bedrooms, allowing more residents to be accommodated without relocation
  • -Improved accessibility and safety, with updated layouts and facilities that support better care
  • -Enhanced staff spaces, making daily operations smoother and more efficient
  • -Upgraded compliance, ensuring the building meets current health, safety, and accessibility regulations
  • -Cost-effective expansion, avoiding the need for a full rebuild
  • -Increased appeal, helping the care home attract new residents and improve its reputation

 

Our Design Approach

Working within a live care environment, we focused on minimising disruption while delivering meaningful improvements. The extension was carefully integrated with the existing structure, creating a seamless flow between old and new. Every design decision was made with residents and staff in mind—from circulation and daylighting to privacy and comfort.

With over 25 years of experience in healthcare architecture, NVDC Architects brings deep sector knowledge and a collaborative approach to every project. We support care providers across the UK with tailored architectural solutions that balance functionality, compliance, and long-term value.

NVDC Architects

Browse our website offline by installing our web app for free!

This website uses cookies to ensure you get the best experience on our website. Privacy Policy