Woodside Place, Townhouse

This project encompassed the redevelopment of a Victorian Sandstone Terrace and a new build environmentally conscious Mews house.

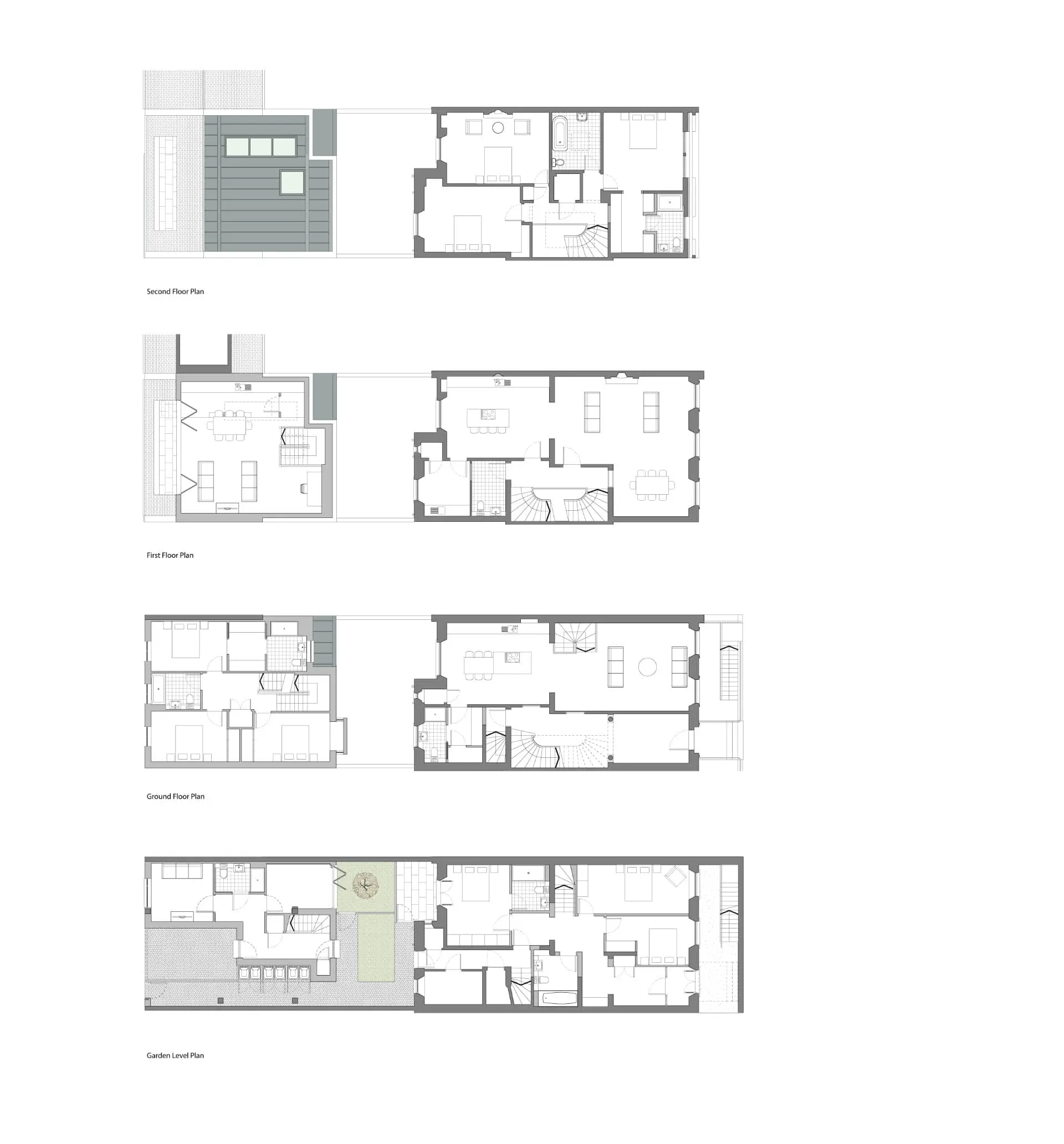
Our third development project for client Henry Duncan comprises the conversion of a 4-storey A-listed townhouse and a new build mews house, situated on Woodside Place in Park Area, Glasgow.

Location
Woodside Place, Glasgow
Client
Henry Duncan (West End) Ltd.
Project Type
Townhouse Design
Project Status
Ongoing 2021-2023
Size
450m2

Woodside Place is situated in the Park Area of Glasgow which has been going through a renaissance over the last 20 years where the sumptuous townhouses have been converted back to residential. The street was designed by the architect George Smith in 1835 and later in 1842 for numbers 12 to 21. In 1970 the buildings on this street received a Category A listing from Historic Scotland.

Following a period of close consultation with the planning department, consent was secured for NVDC Architects' proposal involving the sensitive conversion of the townhouse to form 2no. main door three-bedroom luxury duplex apartments and a new 3/4-bedroom mews style family home facing onto Woodside Place Lane.

NVDC Architects

Browse our website offline by installing our web app for free!

This website uses cookies to ensure you get the best experience on our website. Privacy Policy