Glasgow City College, North Hanover Street

NVDC Architects' proposal for this site has been informed by our desire for a faithful restoration and sensitive conversion of the existing College of Printing and Building and the creation of a highly contextual solution constrained by the site boundaries. Furthermore, our building concept was to be respectful of the existing ‘A’ Listed building while also recognizing the larger & evolving urban landscape in this part of the city, where various approved and on-site proposals around the designated plot are being completed.

Location
North Hanover Street, Glasgow
Client
London & Scottish Investments
Project Type
College Building Design
Project Status
Tender Submission
Size
5,500m2

With this strategy, we aimed to restore The Charles Oakley building to its former glory while creating a respectful neighbour that looks to the future by creating a new and confident heritage by recognising and addressing the larger emerging setting that is taking shape around this listed building.

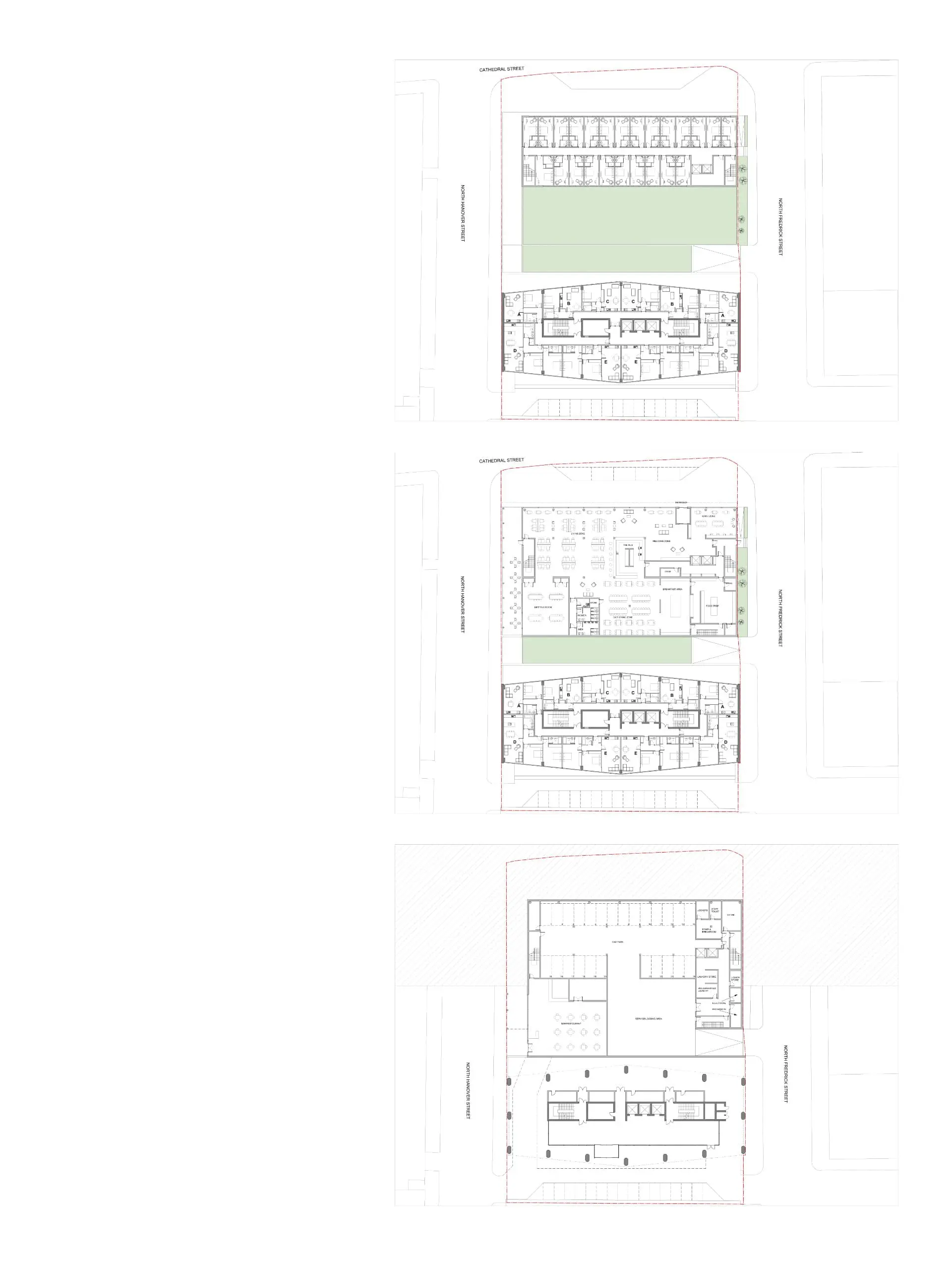
Having carried out various feasibility studies into potential suitable uses for the existing building part of this development, we concluded that the conversion of the existing building to apartments was, in fact, the most appropriate and commercially viable use for it. Residential accommodation room sizes allowed us to subdivide the floor plates with room partitions that fit like a glove with the existing window frame mullions.

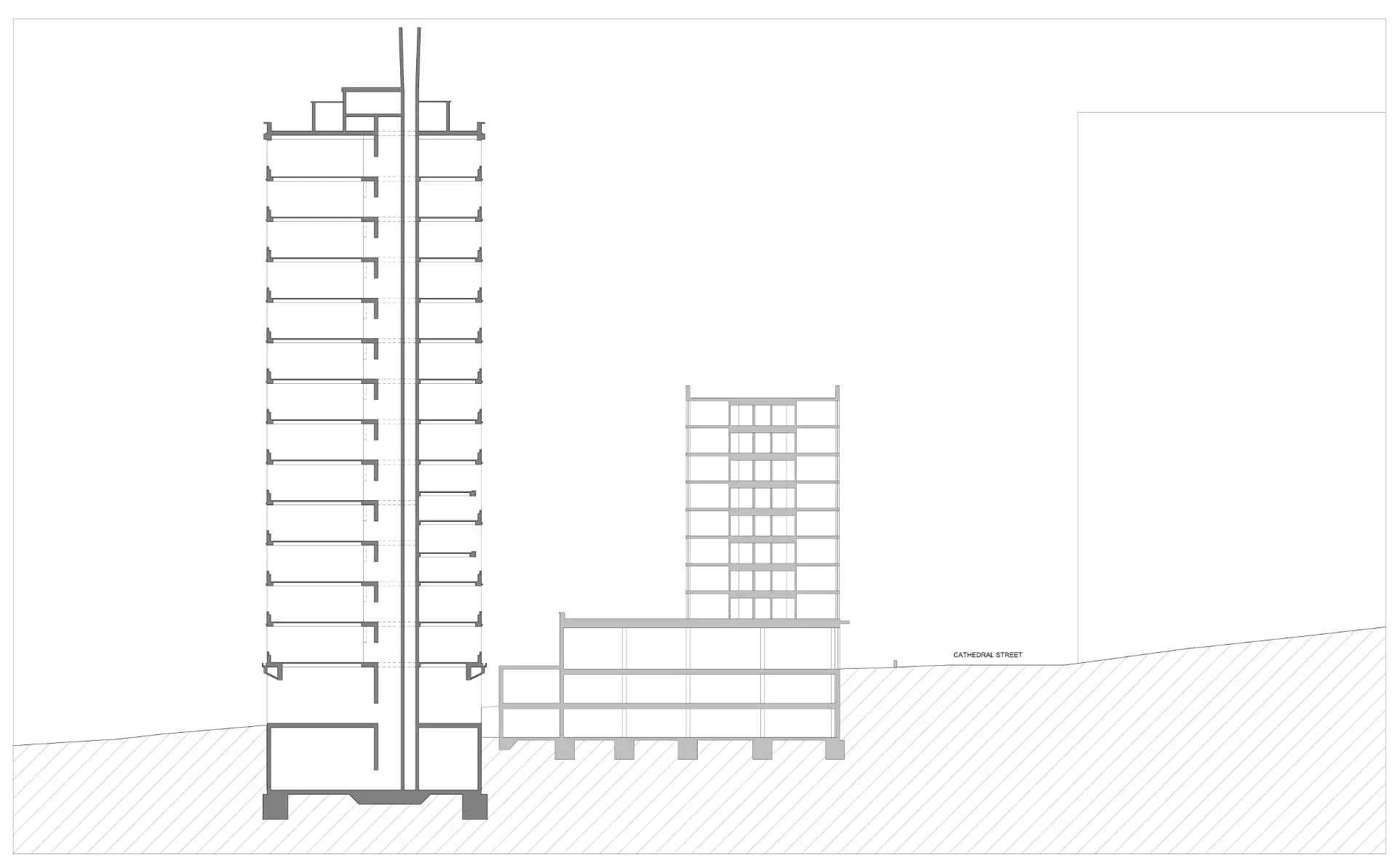
The remainder of the proposal involved the demolition of the existing podium building to be replaced by a new hotel that aims to reinstate the street edge while creating active frontages onto Cathedral Street and Hanover Street. The scale of the new hotel building was restrained in order to minimise its visual impact on the settings of the existing listed building while creating a new dynamic and engaging relationship with the streets on all sides helping to rejuvenate this corner of the city.

NVDC Architects

Browse our website offline by installing our web app for free!

This website uses cookies to ensure you get the best experience on our website. Privacy Policy