NO.9 Dental

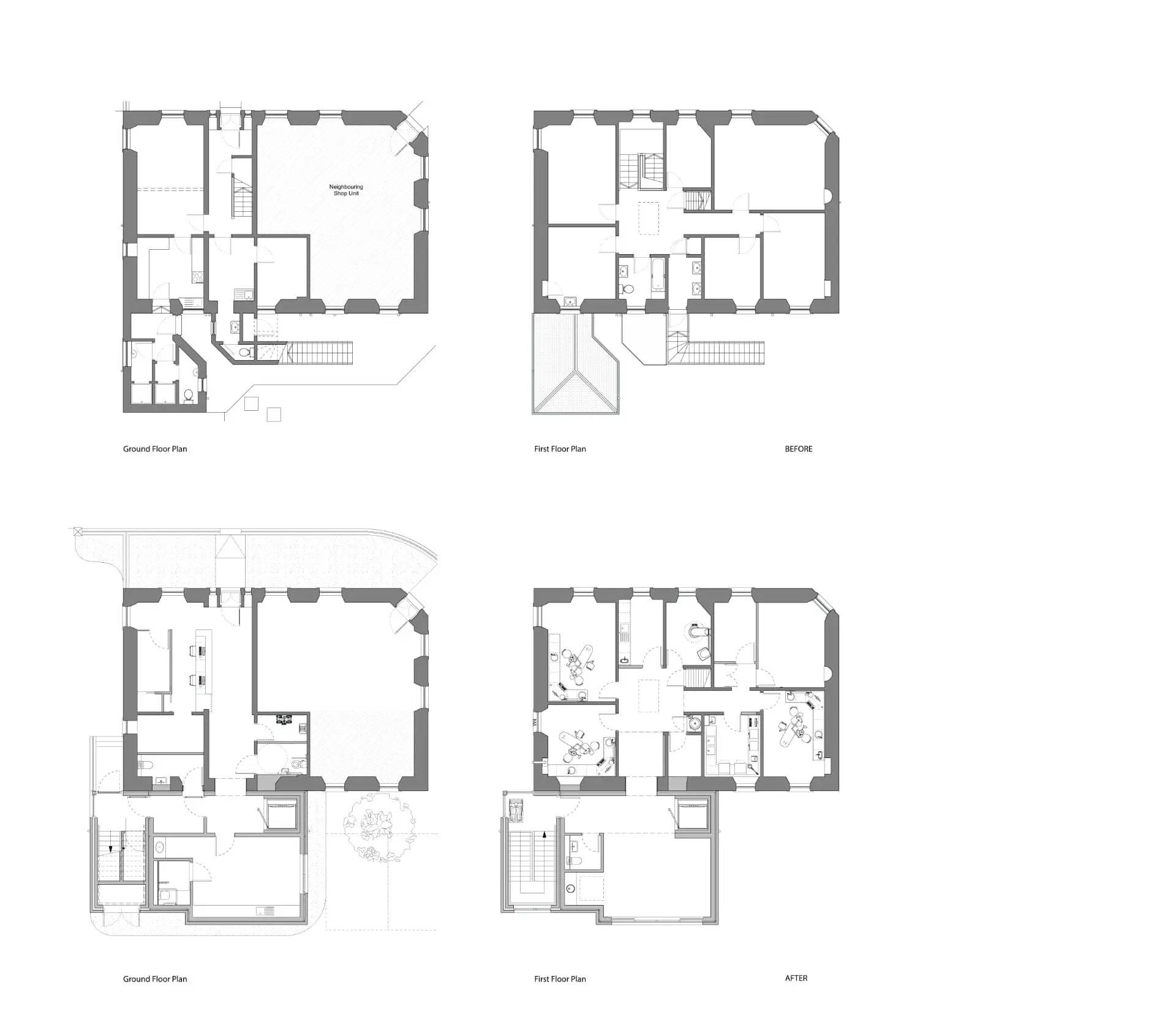
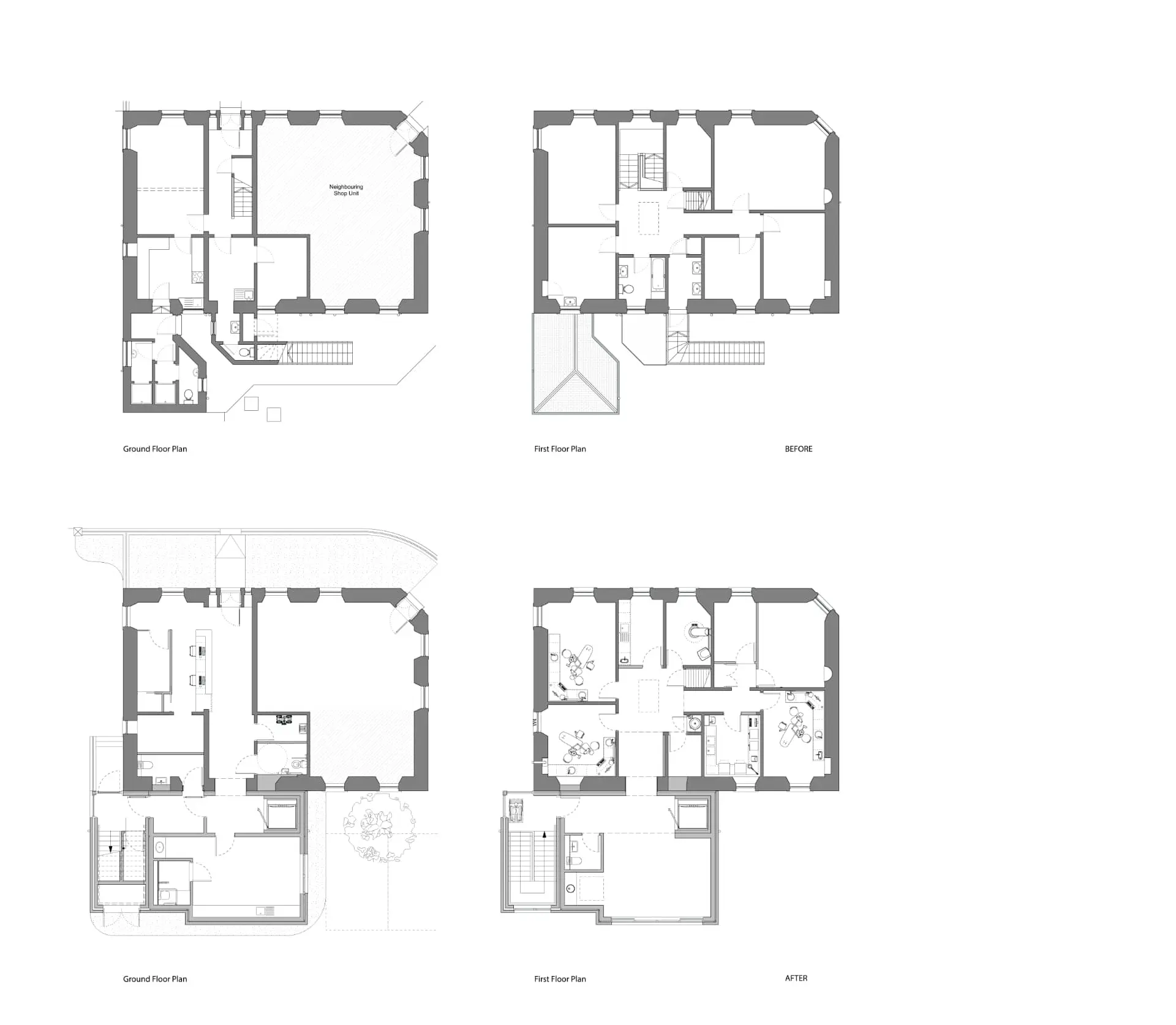
Our client had purchased a property forming three-quarters of a traditional detached villa on Main Street, Uphall, to create a fully compliant referral dental practice.

Location
Main Street, Uphall
Client
NO.9 Dental
Project Type
Dental Practice
Project Status
Completed
Size
280m2

With the bulk of accommodation within the property located on the first floor, our design solution was to devise a new build core consisting of a new lift to provide DDA access to the first floor. The new core, together with the new extension to the rear of the existing property, allows the creation of compliant access as well as the additional floor space needed to maximise the number of surgeries that can be accommodated within the confines of the existing cellular layout.

NVDC Architects

Browse our website offline by installing our web app for free!

This website uses cookies to ensure you get the best experience on our website. Privacy Policy