Heavenly Desserts, Silverburn

Heavenly Desserts approached NVDC Architects again to provide full Architectural Services support for their new unit in Glasgow’s Silverburn Shopping Centre.

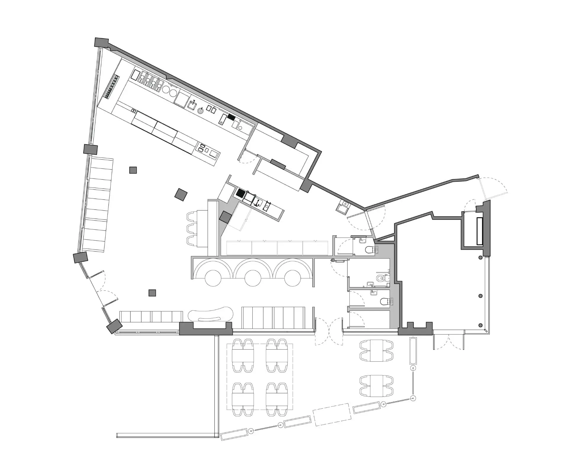
As well as working closely with both the Franchiser and Franchisee and the Heavenly Desserts interior design team to create a compliant internal layout, NVDC had to liaise with Silverburn Management Centre to ensure the design and fit-out of the unit adhered to Silverburn strict design and technical guidelines.

Location
Silverburn Shopping Centre, Glasgow
Client
Private
Project Type
Restaurant Building Design
Project Status
Completed in 2022
Size
195m2

The layout aims to maximise the potential of this awkwardly shaped unit while accommodating the typical Heavenly Desserts space planning concept of a substantial dessert serving bar, luxury built-in booth-style seating as well as ancillary spaces of kitchen, staffing, and servicing facilities to the rear of the unit.

Heavenly Desserts Heavenly Desserts Heavenly Desserts Heavenly Desserts Heavenly Desserts

NVDC Architects

Browse our website offline by installing our web app for free!

This website uses cookies to ensure you get the best experience on our website. Privacy Policy