Heavenly Desserts, Sauchiehall Street

Heavenly Desserts approached NVDC Architects to provide full Architectural Services support on a new unit in Glasgow’s bustling Sauchiehall Street.

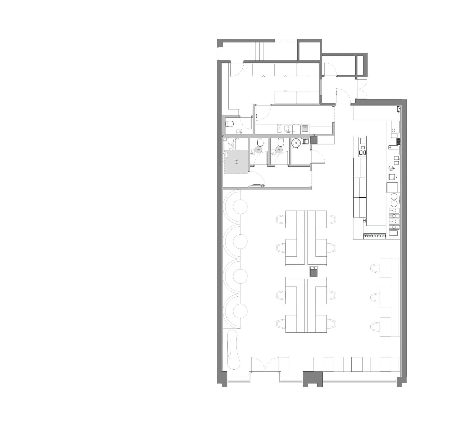
NVDC worked closely with both the Franchiser and Franchisee whilst collaborating with the Heavenly Desserts interior design team to create a compliant internal layout that maximised the available floor space.

Location
Sauchiehall Street, Glasgow
Client
Private
Project Type
Restaurant Building Design
Project Status
Completed in 2022
Size
220m2

The layout of the unit follows the typical model developed by Heavenly Desserts consisting of a large open plan layout with a substantial dessert serving bar, luxury built-in booth-style seating with kitchen, staffing, and servicing facilities to the rear.

NVDC Architects

Browse our website offline by installing our web app for free!

This website uses cookies to ensure you get the best experience on our website. Privacy Policy