Heavenly Desserts, Fountain Park

Restaurant design and fit-out for Heavenly Desserts franchise in Fountain Park, Edinburgh.

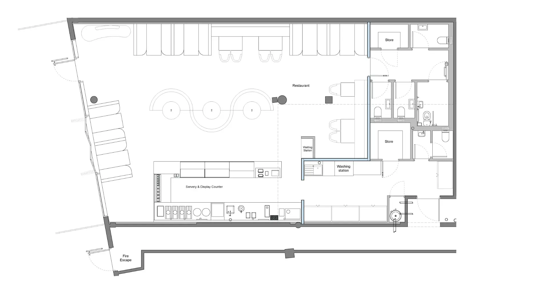
Heavenly Desserts is a successful fast-growing UK-based dessert franchise with over 40 stores in the UK. NVDC Architects were pleased to be approached to develop the first Heavenly Desserts restaurant to launch in Scotland.

Location
Fountain Park, Edinburgh
Client
Private
Project Type
Restaurant Building Design
Project Status
Completed in 2022
Size
182m2

Throughout this project, NVDC liaised closely with both the Franchiser and Franchisee whilst collaborating with the Heavenly Desserts interior design team to create the internal layout and achieve Building Warrant. The 182m2 unit comprises an open plan layout with a substantial dessert serving bar, luxury built-in booth style seating with kitchen, staffing, and servicing facilities to the rear.

NVDC Architects

Browse our website offline by installing our web app for free!

This website uses cookies to ensure you get the best experience on our website. Privacy Policy