GDK, Renfield Street

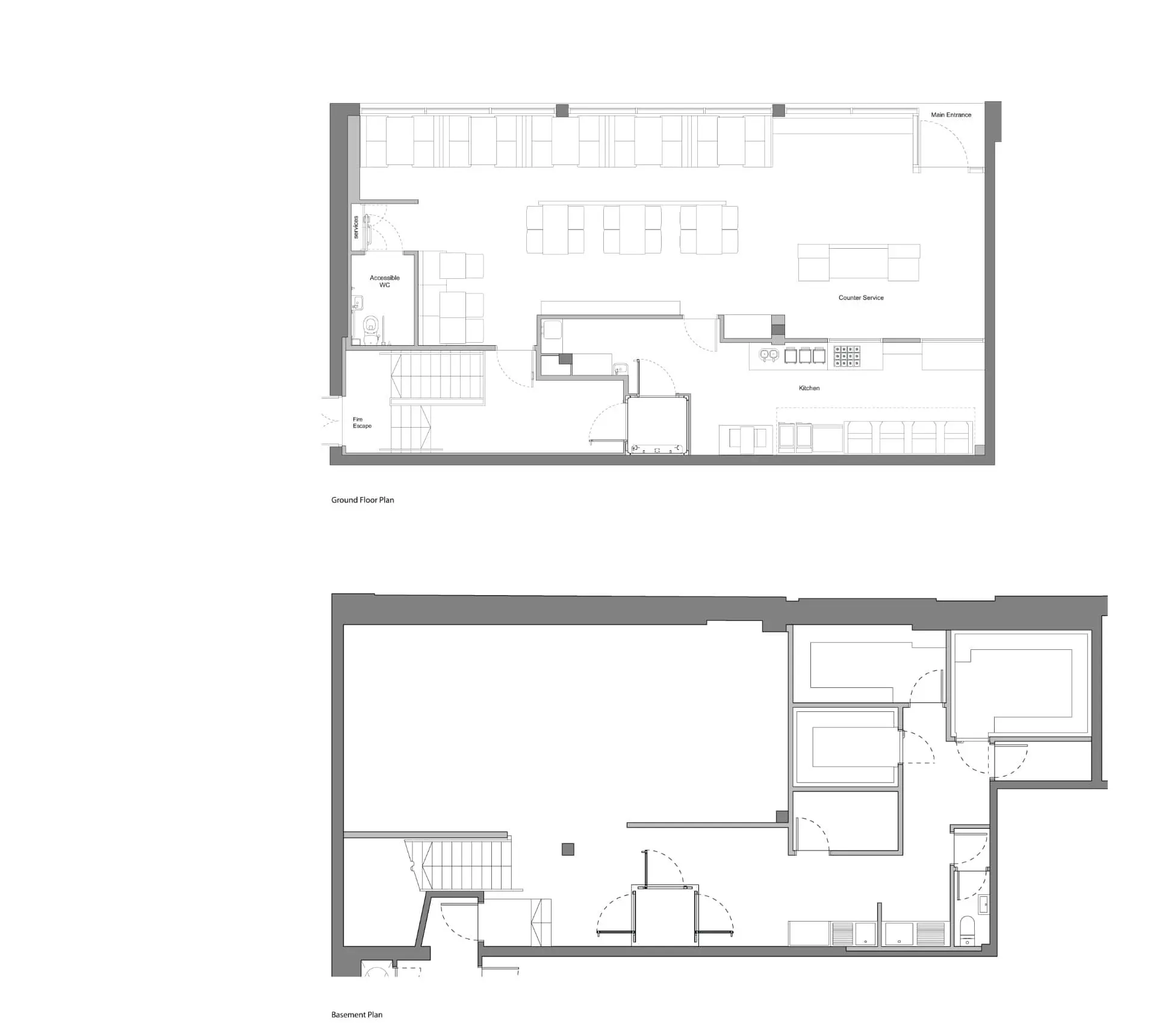
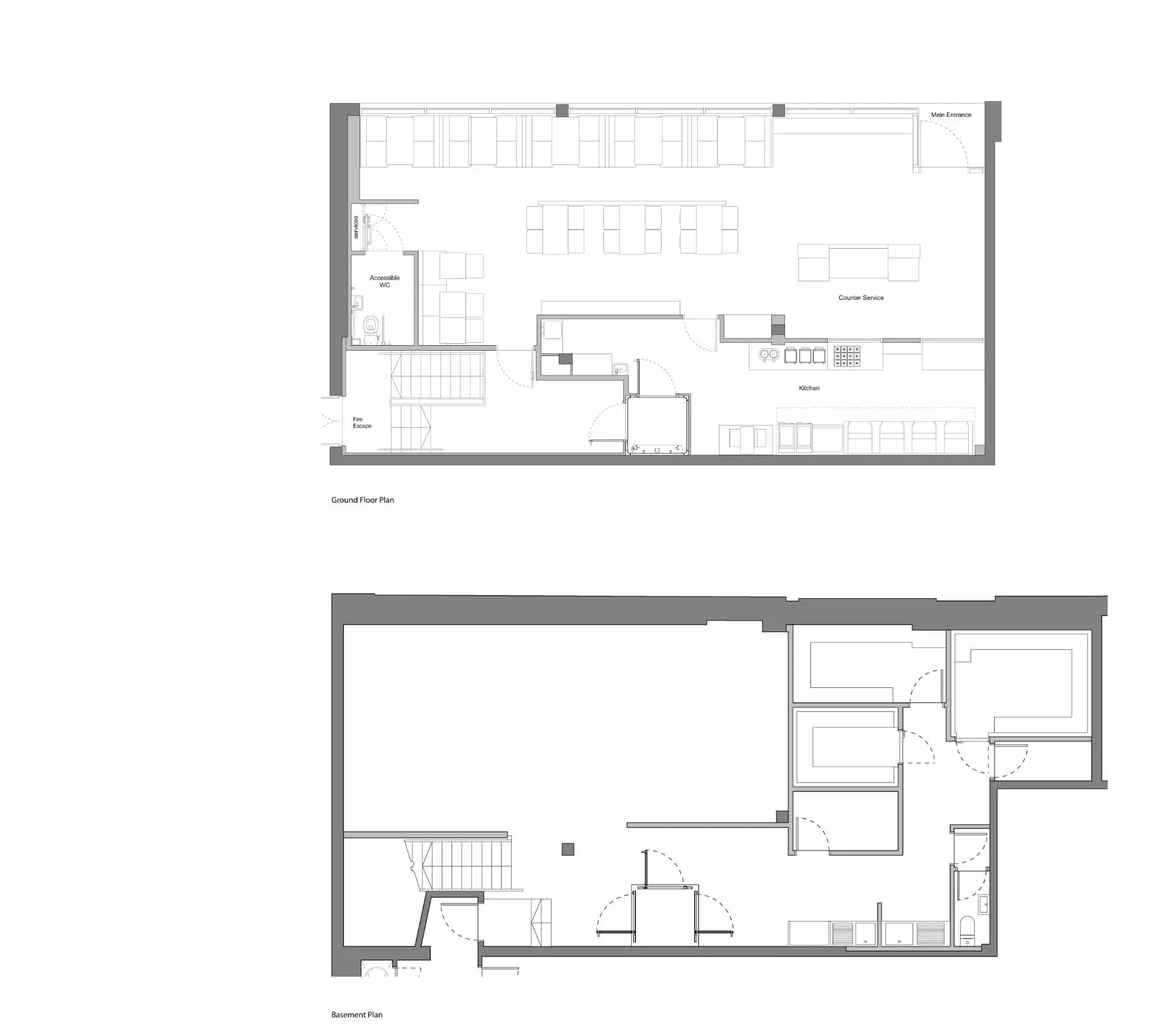
German Donner Kebab approached NVDC Architects to provide full Architectural Services support on their first outlet in Glasgow. The proposed unit was set within the renowned C Listed Odeon Cinema building which had gone through a substantial redevelopment.

The resulting design was the outcome of a close collaboration between NVDC, the Franchiser, and Franchisee interior design team, the contractor, and other members of the design team to create a compliant internal layout that maximised the available floor space.

Location
Renfield Street, Glasgow
Client
Private
Project Type
Restaurant Design
Project Status
Completed in 2020
Size
273m2

The layout of the unit aims to accommodate the typical flow, layout, and seating model developed by GDK while adapting this to fit into the shallow footprint and low floor-to-ceiling heights of the existing 2-storey unit while creating a layout that was DDA-compliant.

NVDC Architects

Browse our website offline by installing our web app for free!

This website uses cookies to ensure you get the best experience on our website. Privacy Policy