Dalmeny Avenue

NVDC Architects' second residential project for our client AYA Developments; involved the extensive remodeling and extension of a traditional interwar two-bedroom bungalow in Giffnock, Glasgow. The client’s brief was to create a light-filled modern four-bedroom home suited to current lifestyle needs and aspirations.

Location
Giffnock, Glasgow
Client
AYA Developments
Project Type
Residential Home Design
Project Status
Completed in 2018
Contract Value
£150,000
Size
155m2

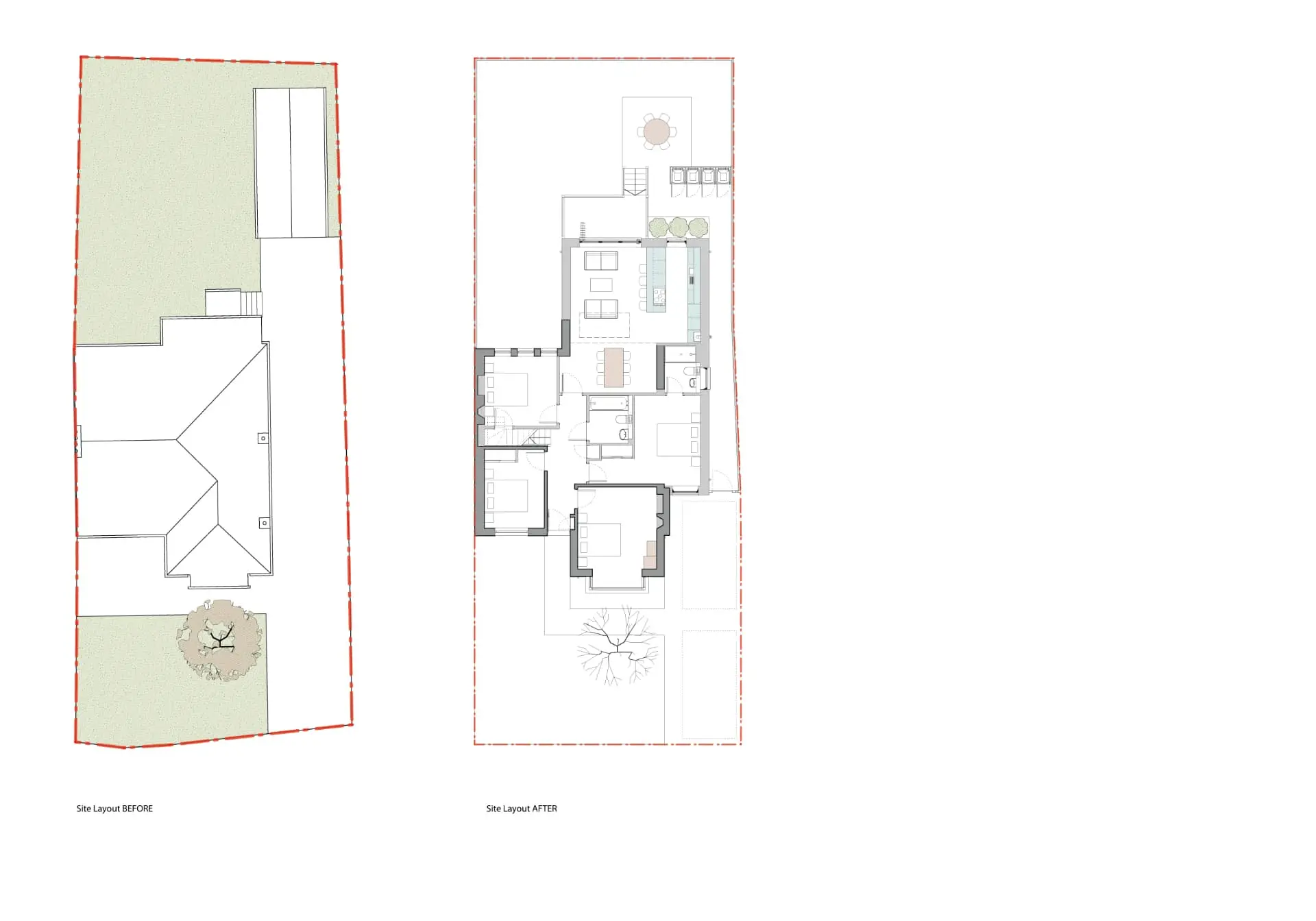
The existing two-bed house had a very small, convoluted, and ‘odd’ layout; our solution was to maximise the potential of the site by building a wrap-around L-shaped extension to the rear and side of the existing house. This move enabled us to create a large light-filled open plan family space with expansive views and easy access to the rear garden through newly installed aluminium bi-fold doors and decked terrace. The extension together with the attic conversion allowed us to deliver the additional floor space needed to create a 4/5-bedroom family home fit for contemporary living.

NVDC Architects

Browse our website offline by installing our web app for free!

This website uses cookies to ensure you get the best experience on our website. Privacy Policy