Cadzow Street

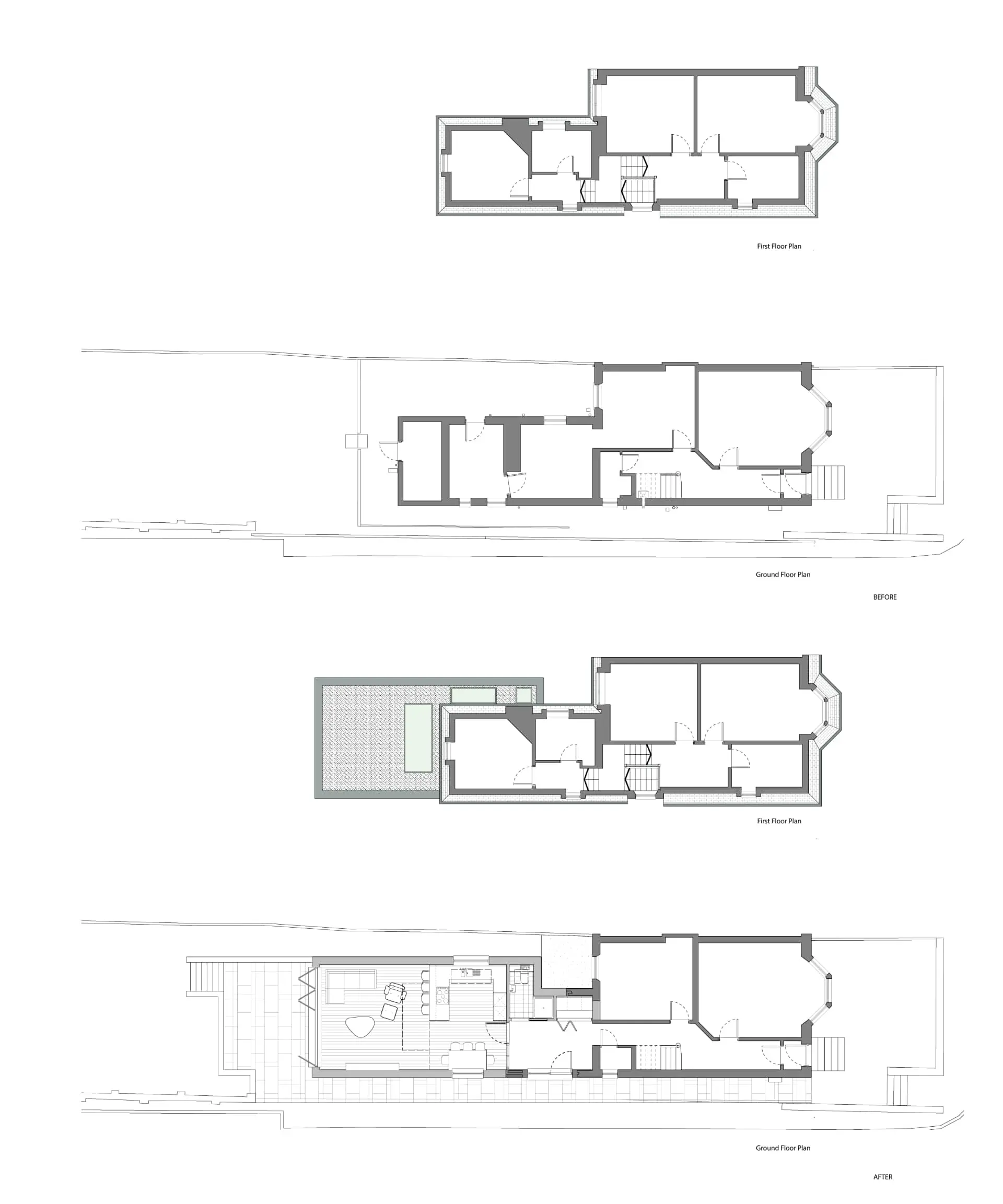
The client’s house layout for this project turns its back on the rear garden, so they were looking to create an open-plan kitchen/family space to the rear of the house that allowed them to enjoy their garden.

The rear garden is very long but narrow, so NVDC Architects proposed to create a single rectangular open plan space that expands and maximises the footprint of the house on ground level to the rear.

Location
Cadzow Street, Motherwell
Client
Private Client
Project Type
Residential Home Design
Project Status
Building Warrant Obtained
Size
65m2

A series of new steel beams hidden within the new ceiling structure carry the upper floor structure whilst allowing the new extension to have an open plan column-free space, flooded with daylight through the new roof lights. Full-height wall-to-wall bi-fold doors on the rear wall of the extension maximise views overlooking the rear garden while creating a strong visual connection and enjoyment of the garden as soon as you enter through the front door of the house.

17 Cadzow Street, Motherwell 17 Cadzow Street, Motherwell 17 Cadzow Street, Motherwell 17 Cadzow Street, Motherwell 17 Cadzow Street, Motherwell 17 Cadzow Street, Motherwell 17 Cadzow Street, Motherwell

NVDC Architects

Browse our website offline by installing our web app for free!

This website uses cookies to ensure you get the best experience on our website. Privacy Policy