Bupa Lewisham

Bupa Lewisham is a new 5-surgery Orthodontics practice for the Bupa Dental Care brand, Total Orthodontics.

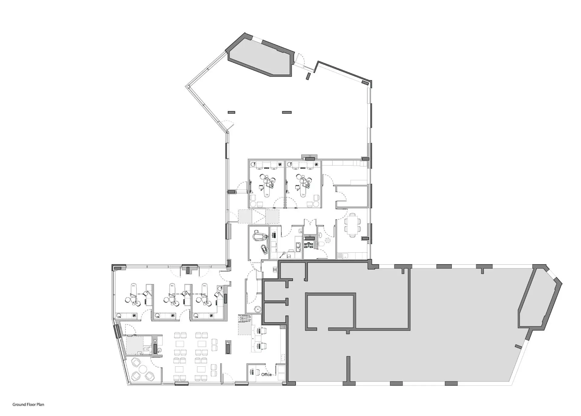
Situated within a large ground-level commercial unit forming part of a newly built student accommodation block in the centre of Lewisham, the design of the practice aims to create a bright and calming environment for the patients while delivering good flow and functionality.

Location
Mercy Terrace, Lewisham, London
Client
Bupa Dental Care
Project Type
Dental Pratice
Project Status
Completed in 2020
Contract Value
£350,000
Size
270m2

The interior design of the practice was based on an interior branding scheme developed by NVDC using Total Orthodontics' brand colours to create a playful yet professional feel for the practice, reflective of the high-quality care delivered in a fun and loving way.

NVDC Architects

Browse our website offline by installing our web app for free!

This website uses cookies to ensure you get the best experience on our website. Privacy Policy